Szacunkowy koszt wykonania remontu
20 000 — 30 000 zł

Jasna sypialnia z miejscem do pracy. Home office

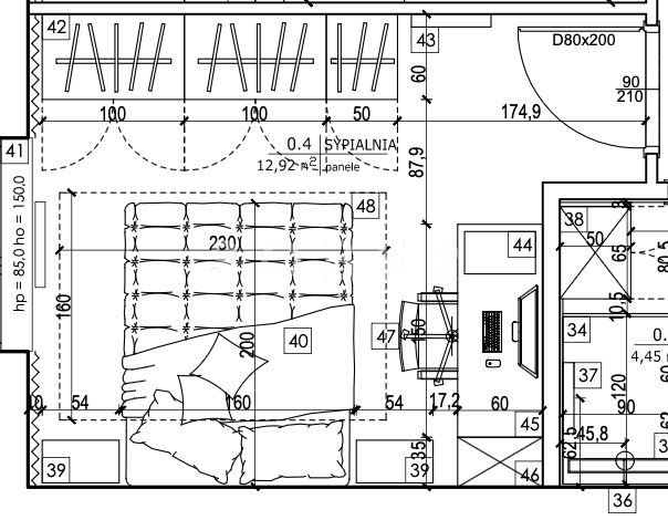
Jasna, spora sypialnia, w której znalazła się oprócz łóżka szafa z firmy IKEA, biurko, toaletka dostawiona do regału na ścianie. Całość pomieszczenia ma przyjemny miły charakter, jasny. Co ważne całość nie jest droga w realizacji. Najdroższe w tym pomieszczeniu to meble, które zawsze można zmienić na inny tańszy materiał, lub zakupić później. Pokój ten ze względu na biurko / toaletkę regał i kontener może być również miłym home officem. Pomieszczenie w kwadracie o powierzchni 362 cm na 333 cm Szacunkowy koszt materiałów wykończeniowych bez mebli to 10 000 zł

Zakres cen: od 300,00 zł do 390,00 zł

Przeważający materiał Farba, Tapety/fototapety
Projektant Aranżacja Wnętrz
Przeważający kolor Beżowy, Biały
Kategoria Sypialnia
Przeważający styl Modern Classic, Modernistyczny, Nowoczesny
Powierzchnia 12.05 m2
Wymiary pomieszczenia 333 x 362 cm
Szacunkowy koszt wykonania remontu 20 000 — 30 000 zł
Szacunkowy koszt materiałów wykończeniowych 25 000 — 30 000 zł
Z wykorzystaniem mebli IKEA Tak
+ Dodaj projekt indywidualny

Kupując dany projekt masz dwie możliwości:

A- Kupujesz bez dopasowania projektu do Twojego Wnętrza

Jeśli kupisz projekt bez dopasowania to otrzymasz:

  • Wizualizacje pomieszczenia
  • Projekt funkcyjny
  • Schemat instalacji elektrycznej
  • Schemat instalacji wodnej
  • Układ płytek (jeśli płytki są uwzględnione w tym pomieszczeniu)
  • Rozwiniecie każdej ściany jeśli cos na niej jest
  • Zestawienie materiałów wykończeniowych potrzebnych do zrealizowania projektu, wraz z ilościami.

B- Kupujesz z możliwością dopasowania

Jeśli kupisz projekt z dopasowaniem to otrzymasz:

  • Zestaw wszystkich rysunków technicznych uwzględniających Twoje indywidualne wymiary pomieszczenia,
  • Modyfikację układu funkcjonalnego zgodnie z Twoimi wytycznymi (np. przesunięcie drzwi, okien, zmiana ustawienia mebli),
  • Dostosowanie instalacji elektrycznej i wodnej do rzeczywistego układu pomieszczenia (o ile to możliwe),
  • Nowy układ płytek, dopasowany do zmienionych wymiarów lub układu pomieszczenia,
  • Zaktualizowane rozwinięcia ścian uwzględniające nowe rozmieszczenie elementów,
  • Zaktualizowane zestawienie materiałów potrzebnych do realizacji projektu w nowej wersji.